[CTST] Giải SBT toán 6 bài 3: Chu vi và diện tích của một số hình trong thực tiễn
Giải SBT toán 6 tập 1 bài 3: Chu vi và diện tích của một số hình trong thực tiễn sách "chân trời sáng tạo". KhoaHoc sẽ hướng dẫn giải tất cả câu hỏi và bài tập với cách giải nhanh và dễ hiểu nhất. Hi vọng, thông qua đó học sinh được củng cố kiến thức và nắm bài học tốt hơn.
Bài 1. Tính chu vi và diện tích của hình bên, biết AB = AD = 4 cm, BC = CD = 2 cm, các góc B và D đều là góc vuông

Lời giải
Chu vi của hình là:
P = AB + BC + CD + DA = 4 + 2 + 2 + 4 = 12 (cm)
Diện tích của hình là:
S = ![]()
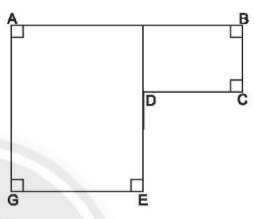
Bài 2. Tính chu vi và diện tích của hình bên, biết AB = 7 cm, BC = 2 cm, CD = 3 cm và DE = 3 cm

Lời giải
Ta có: GE = AB - CD = 7 - 3 = 4 (cm)
AG = BC + DE = 2 + 3 = 5 (cm)
Chu vi của hình là:
P = AB + BC + CD + DE + EG + GA = 7 + 2 + 3 + 3 + 4 + 5 = 24 (cm)
Phân chia thành 2 hình chữ nhật

Khi đó ta có diện tích của hình là:
S = 5.4 + 3.2 = 26 ![]()
Bài 3. Tính chu vi của hình bên, biết BCDE là hình chữ nhật có diện tích 135m
, BC = 15 m, ABGK là hình chữ nhật có diện tích 180 m
, BE = EG.

Lời giải
BE.EC = 135 nên BE = 135 : 15 = 9 (m)
Suy ra EG = BE = 9 m và AK = BG = 18 m
AB.AK = 180 nên AB = 180 : 18 = 10 (m)
Suy ra KG = AB = 10 m
Chu vi cần tìm là:
P = 10 + 15 + 9 + 15 + 9 + 10 + 18
= 86 (m)
Bài 4. Một mảnh vườn hình chữ nhật có chiều dài 40 m, chiều rộng 30 m với lối đi hình bình hành rộng 2 m (xem hình dưới). Tính diện tích phần mảnh vườn không tính lối đi.

Lời giải
Diện tích của cả mảnh vườn là:
40.30 = 1200 (![]()
Diện tích lối đi là:
2.30 = 60 (![]()
Vậy diện tích phần mảnh vườn không tính lối đi là:
1200 - 60 = 1140 (![]()
Bài 5. Khu đậu xe ô tô của một cửa hàng có dạng hình chữ nhật với chiều dài 14 m, chiều rộng 10 m. Trong đó, một nửa khu vực dành cho quay đầu xe, hai góc tam giác để trồng hoa và phần còn lại chia đều cho bốn chỗ đậu xe ô tô (xem hình)

a) Tính diện tích chỗ đậu xe dành cho một ô tô.
b) Tính diện tích dành cho đậu xe và quay đầu xe.
Lời giải
a) Diện tích mỗi chỗ đậu xe là: 3.5 = 15 (![]()
b) Diện tích hình chữ nhật là: 10.14 = 140 (![]()
Diện tích phần trồng hoa là: 2.5 = 10 (![]()
Diện tích cần tìm là: 140 - 10 = 130 (![]()
Bài 6. Tính diện tích dành cho đậu xe và quay đầu xe.

Lời giải
Ta có:
BE = 2.OB = 6 cm; CG = 2.OG = 8 cm
Diện tích hình thoi BCEG là:
BE.CG = 24 ($cm^{2})$
Diện tích hình thang ABCD là:
(AB + CD).OC =
(6 + 12).4 = 36 ($cm^{2})$
Diện tích cần tìm: 24 + 36 = 60 (![]()